WORKS施工実績

外壁アルミ見切材

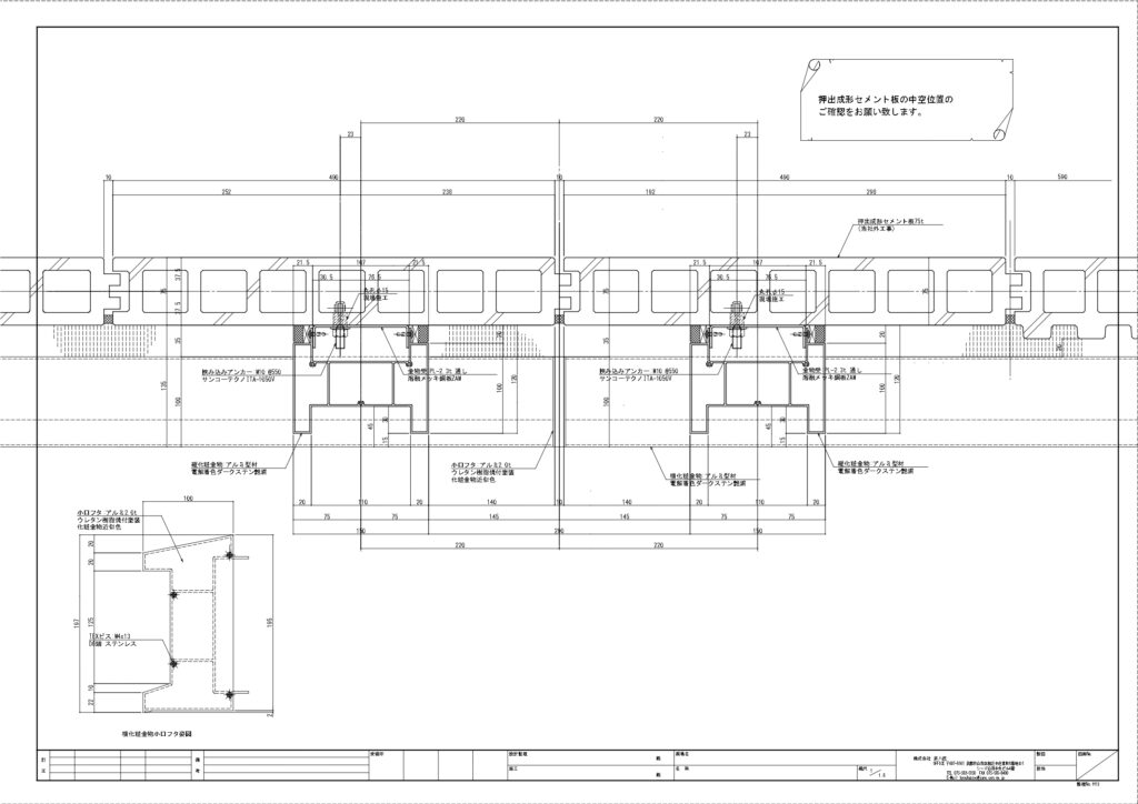
XSB-5528_01-01XSB-5528_01-01XSB-5528_01-01 図面XSB-5528_01-01 施工図XSB-5529_01-01XSB-5529_01-01-1XSB-5528_01-01 図面XSB-5529_01-01 施工図XSB-5529_01-01 施工図施工例(縦ボーダー)
XSB-5528_01-01
XSB-5528_01-01
XSB-5528_01-01 図面
XSB-5528_01-01 施工図
XSB-5529_01-01
XSB-5529_01-01-1
XSB-5528_01-01 図面
XSB-5529_01-01 施工図
XSB-5529_01-01 施工図
施工例(縦ボーダー)

某現場にて外壁アルミ見切材の新型を作成しました。

型材 XSB-5528_01-01 最低ロット 150m以上

型材 XSB-5529_01-01 最低ロット 100m以上

色は電着、焼付も可能です。

#外壁#ボーダー#見切り#アルミ

一覧へ戻る